Характеристики
В наличии
—
Да
Серия трансформатора
—
ТСЗ
Мощность трансформатора, кВА
—
63
Схема соединения обмоток
—
У/Ун-0
U перв. обмотки, В
—
10000
U втор. обмотки, В
—
400
Все характеристики
В корзину
Купить в 1 клик
Наличие уточняйте у наших менеджеров
ОБЩИЕ СВЕДЕНИЯ
Трансформатор ТСЗК-63/10-УХЛ4 предназначен для работы на под-земных подстанциях метрополитена. Применяется в народном хозяйстве ирассчитан для работы в сетях трехфазного переменного тока частотой 50Гц.
Структура условного обозначения типа трансформатора:
ТСЗК-63/10-УХЛ4
Т– трехфазный;
СЗ– естественное воздушное охлаждение при защищенном исполне-нии;
К– изоляция класса нагревостойкости“H”;
63 – типовая мощность, кВ⋅А;
10 – класс напряжения, кВ;
УЛХ4 – климатическое исполнение и категория размещения по ГОСТ
15150-69 и ГОСТ15543.1-89.
УСЛОВИЯ ЭКСПЛУАТАЦИИ
высота над уровнем моря не более1000 м.температура окружающего воздуха от1 до35 °С;
относительная влажность воздуха80% при температуре25 °С;
среднегодовое значение относительной влажности воздуха60% при темпера-туре20 °С;
атмосферное давление от650 до850 мм рт. ст.;
окружающая среда невзрывоопасная, не содержащая токопроводящей пыли,
агрессивных газов и паров в концентрациях, разрушающих металлы и изоля-цию.
Требования техники безопасности по ГОСТ12.2.007.2-75, в том числе
пожаробезопасности по ГОСТ12.1.004-91.
ТЕХНИЧЕСКИЕ ДАННЫЕ
Номинальная мощность, кВ⋅А 63Номинальные напряжения, В:
обмотки ВН 10500 обмотки НН 400-230; 230-133
Схема и группа соединения Y/Yн-0; Y/∆-11
Потери холостого хода, Вт 500
Потери короткого замыкания, Вт 1450
Напряжение короткого замыкания, % 5,3
Ток холостого хода, % 5,0
Масса, кг 570
Трансформатор рассчитан на продолжительную работу при повышении напряжения, подводимого к любому ответвлению обмотки, на10% сверх но-минального напряжения данного ответвления, а напряжение на любой сто-роне трансформатора не должно превышать наибольшее рабочее напряжение.
Трансформатор рассчитан на продолжительную нагрузку током, пре-вышающим на 5% номинальный ток, если напряжение не превышает номи-нальное напряжение соответствующего ответвления.
Превышение температуры отдельных частей трансформатора над тем-пературой окружающего воздуха: не более 140° С для магнитопровода и 125 °С для обмоток.
Сопротивление изоляции обмоток ВН – не менее 500 МОм, обмоток
НН– не менее 100 МОм при температуре окружающего воздуха25±10 °С.
Уровень звука не превышает80 дБА.
Стойкость при коротком замыкании соответствует ГОСТ 11677 – 85.
Продолжительность короткого замыкания на зажимах трансформатора– 4 с.
Электрическая прочность изоляции трансформатора по
ГОСТ1516.1-76 для электрооборудования с облегченной изоляцией.
Установленный срок службы до списания– 25 лет.
Средний срок службы до первого капитального ремонта не менее
12 лет.
КОНСТРУКЦИЯ
Трансформаторы трехфазные с естественным воздушным охлаждением,изоляцией класса нагревостойкости “Н”.
Магнитопровод трансформатора выполнен из рулонной электротехнической стали толщиной 0,35 мм. Форма сечения стержня и ярма – многоступенчатая.
Обмотки концентрические слоевые выполнены из медного провода с при-менением изоляционных материалов класса нагревостойкости “Н” по
ГОСТ8865-93.
В нейтрали трансформатора предусмотрено регулирование напряжения
ВН ступеням±5% номинального, без возбуждения(ПБВ) при отключенном
от сети трансформаторе, переключением перемычки на панели зажимов.
Со стороны НН устанавливается предохранитель типа ПП-А/З-У3.
Трансформатор выполняется в защитном кожухе прямоугольной формы.
В наличии
Да
Серия трансформатора
ТСЗ
Мощность трансформатора, кВА
63
Схема соединения обмоток
У/Ун-0
U перв. обмотки, В
10000
U втор. обмотки, В
400
Количество фаз
3
Материал обмоток трансформатора
Cu
Размер L, мм
0
Климатическое исполнение
У3
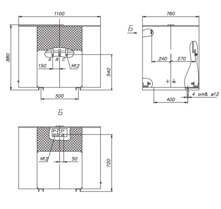
Габаритные размеры ДхШхВ, мм
1100Х760Х880
Масса, кг
570
Транспортный габарит ДхШхВ, мм
1100Х760Х880
Текст с акцией
ЛИКВИДАЦИЯ СКЛАДА
